Aller à :

  • Aller à la recherche
  • Aller au menu principal
  • Aller au contenu
0
  • FONDS DE COMMERCE
  • Actualités
  • NOUS CONTACTER
0
VotreRecherche
Dans un rayon de
Budget
entre et €
Min €
Max €
  1. Accueil
  2. Commerces
  3. Location
  4. Haute vienne
  5. St junien
  6. Bureaux
  7. Loc plateau bureaux neufs 150m
Réf : 4114/CBB87
Bureaux
LOC. PLATEAU BUREAUX NEUFS 150m²
Nombre de pièces 1
1 750 € / mois HT HC*

* HC : Hors Charge
* NDT : Net de TVA

FAI

LOC. PLATEAU BUREAUX NEUFS 150m² Saint-Junien (87200)

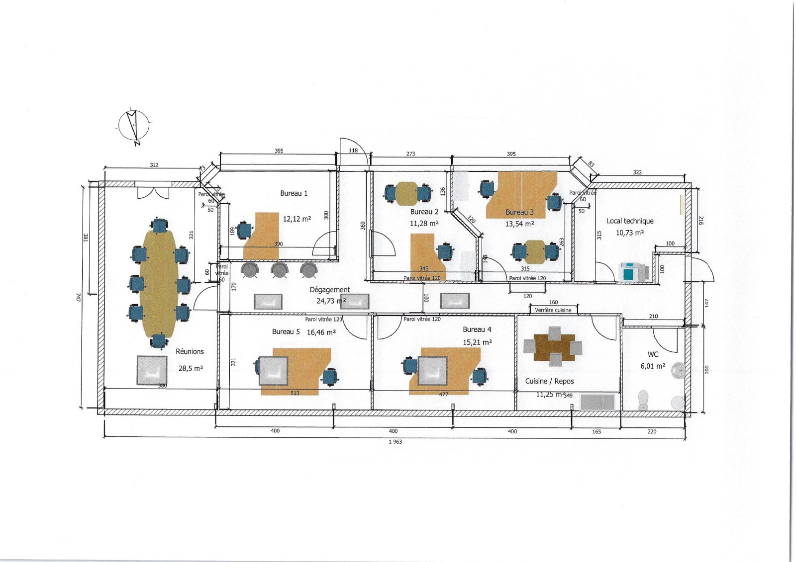
Nous sommes dans le centre ville de SAINT JUNIEN, deuxième ville de la Haute-Vienne. Nous y louons dans un Bâtiment rénové, un Ensemble de Bureaux Neufs en RDC sur Emprise de 150m², constitué, sur un site à l'accès contrôlé par barrière automatique, et autour d'un couloir en "T" : Côté Parking: d'une Salle de Réunion de +/-28,5m², Bureau N°1 de 12,12m², N°2 de 11,28m², N°3 de 13,54m², et Local Technique de 10,73m². Côté opposé : d'un Bureau N°4 de 15,21m², N°5 de 16,46m², Local Social/eKitchenette de 11,25m², et Bloc Sanitaires de 6,01m². Ensemble refait à neuf pour l'accueil de son Locataire ayant pris à bail le 01 novembre 2022, dans le cadre d'un Bail Commercial jusqu'au 31 décembre 2031. Le Locataire souhaiterait pour dess, raisons stratégiques quitter les locaux dès que possible. Chauffage par Convecteurs électriques Individuels récents, Climatisation possible (aux frais du Locataire) en cas. Activités attendues : Bureau, Étude, Cabinet, Agence...

Nous Louons ce local, immédiatement disponible afin de libérer l'actuel locataire,  pour un Loyer Mensuel de 1.750,00€HTHC. Provision Mensuelle de Charges: 160,00€ incluant la refacturation mensualisée de la Taxe Foncière.

Nos Honoraires d'Agence correspondant à 9,6%TTC, soit 6.048,00€TTC, sont à la charge du Preneur.

Les informations sur les risques auxquels ce bien est exposé sont disponibles sur le site: www.georisques.gouv.fr

REF ROPERT IMMO : 4114/CBB87

  • Général
  • Détails +
  • Financier
  • Activité
  • DPE
  • Quartier
Caractérisque Valeurs
Type de transac Bureaux
Code postal 87200
Surface habitable (m²) 150 m²
Nombre de niveaux 1
Superficie (m²) 150
Caractérisque Valeurs
Mode de chauffage Electrique
Type de chauffage Convecteur
Format de chauffage Individuel
Caractérisque Valeurs
Loyer HT 1 750 € / mois
Honoraires HT charge locataire 6 048 €
Dont état des lieux Non renseigné
Dépot de garantie 3 500 €
Charges locatives HT (provision donnant lieu à régularisation annuelle) 160 €
Bail COMMERCIAL (9 ANS) ou PROFESSIONNEL (6 ANS)
Chiffre d'affaires
EBE
Caractérisque Valeurs
type d'activité - Divers
DPE GES
  • Commerces et santé
  • Loisirs
  • Ecoles
  • Transports
  • Pratique
Cette offre
vous intéresse

* champs obligatoires

Les informations recueillies sur ce formulaire sont enregistrées dans un fichier informatisé par La Boite Immo agissant comme Sous-traitant du traitement pour la gestion de la clientèle/prospects de l'Agence / du Réseau qui reste Responsable du Traitement de vos Données personnelles.
La base légale du traitement repose sur l’intérêt légitime de l'Agence / du Réseau.
Elles sont conservées jusqu'à demande de suppression et sont destinées à l'Agence / au Réseau.
Conformément à la loi « informatique et libertés », vous pouvez exercer votre droit d'accès aux données vous concernant et les faire rectifier en contactant l'Agence / le Réseau.
Si vous estimez, après avoir contacté l'Agence / le Réseau, que vos droits « Informatique et Libertés » ne sont pas respectés, vous pouvez adresser une réclamation à la CNIL.
Nous vous informons de l’existence de la liste d'opposition au démarchage téléphonique « Bloctel », sur laquelle vous pouvez vous inscrire ici : https://www.bloctel.gouv.fr 
Dans le cadre de la protection des Données personnelles, nous vous invitons à ne pas inscrire de Données sensibles dans le champ de saisie libre
Ce site est protégé par reCAPTCHA, les Politiques de Confidentialité et les Conditions d'Utilisation de Google s'appliquent.

Partager le bien
Nos outils
Imprimer Imprimer
Calculatrice financière

* Champ obligatoire

Partager l'annonce

* champs obligatoires

Les informations recueillies sur ce formulaire sont enregistrées dans un fichier informatisé par La Boite Immo agissant comme Sous-traitant du traitement pour la gestion de la clientèle/prospects de l'Agence / du Réseau qui reste Responsable du Traitement de vos Données personnelles.
La base légale du traitement repose sur l’intérêt légitime de l'Agence / du Réseau.
Elles sont conservées jusqu'à demande de suppression et sont destinées à l'Agence / au Réseau.
Conformément à la loi « informatique et libertés », vous pouvez exercer votre droit d'accès aux données vous concernant et les faire rectifier en contactant l'Agence / le Réseau.
Si vous estimez, après avoir contacté l'Agence / le Réseau, que vos droits « Informatique et Libertés » ne sont pas respectés, vous pouvez adresser une réclamation à la CNIL.
Nous vous informons de l’existence de la liste d'opposition au démarchage téléphonique « Bloctel », sur laquelle vous pouvez vous inscrire ici : https://www.bloctel.gouv.fr 
Dans le cadre de la protection des Données personnelles, nous vous invitons à ne pas inscrire de Données sensibles dans le champ de saisie libre
Ce site est protégé par reCAPTCHA, les Politiques de Confidentialité et les Conditions d'Utilisation de Google s'appliquent.

Détail des diagnostics énergétiques
DPE GES
DPE ANCIENNE VERSION

Partager avec vos proches

Facebook Facebook
Messenger Messenger
Twitter Twitter
WhatsApp WhatsApp
LinkedIn LinkedIn
Copier le lien Copier le lien
Se connecter
Espace propriétaire
Page d'accueil
Adhérents

© 2025 | Tous droits réservés | Traduction powered by Google |

  • Nos honoraires
  • Plan du site
  • Mentions légales
  • Partenaires
  • Admin
  • Politique RGPD
  • LinkedIn

Comme beaucoup, notre site utilise les cookies

On aimerait vous accompagner pendant votre visite. En poursuivant, vous acceptez l'utilisation des cookies par ce site, afin de vous proposer des contenus adaptés et réaliser des statistiques !

Paramétrer

Statistiques de visites

Pour améliorer votre expérience, on a besoin de savoir ce qui vous intéresse !
Les données récoltées sont anonymisées.

?

Google Analytics

requis
?

Google Tag Mananger

requis
En savoir plus