Aller à :

  • Aller à la recherche
  • Aller au menu principal
  • Aller au contenu
0
  • FONDS DE COMMERCE
  • Actualités
  • NOUS CONTACTER
0
VotreRecherche
Dans un rayon de
Budget
entre et €
Min €
Max €
  1. Accueil
  2. Commerces
  3. Location
  4. Haute vienne
  5. Limoges
  6. Local commercial
  7. Loc restau wok grill limoges equipe 320m
Nouveauté
Réf : 4351/CBB87
Local commercial
LOC RESTAU (WOK / GRILL) LIMOGES ÉQUIPÉ 320m²
Nombre de pièces 2
3 900 € / mois HT CC*

* Charges comprises

FAI

LOC RESTAU (WOK / GRILL) LIMOGES ÉQUIPÉ 320m² Limoges (87000)

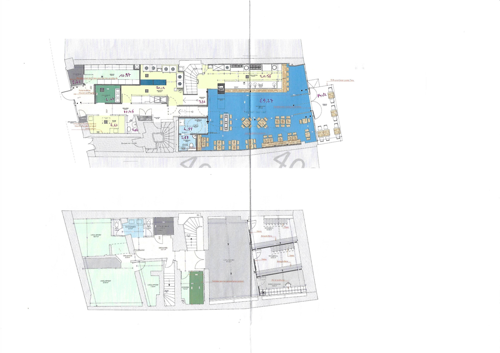
Nous sommes à LIMOGES en HYPERCENTRE proche Mairie/Halles/Tribunal. Nous y louons, avec Droit d'Entrée donnant propriété du Matériel, un Local traversant à usage Restauration, récemment mis aux normes pour une Enseigne Nationale. Le local d'une superficie 320 m² environ développée sur deux niveaux, refait à neuf et exploité 15 mois par ladite Enseigne, est constitué:
1°) En RDC de 166m² environ : d'une Salle de Restauration de 73m² environ pour 50 couverts environ (Assis à Table et Manges-Debout), donnant sur une Cuisine type "Wok" d'un seul tenant et indémontable de 21m² environ avec Induction triple feu & Bain Marie. Espaces Plonge et Laboratoire (26,7m² environ), Réserve (10,8m²), Local Technique, Local Poubelles, Espaces Sanitaires Clients PMR (7,5m²) et Personnel (2m²), et Circulations.
2°) En Sous-Sol de 154m² : accessible par escalier: Locaux Sociaux (37m² environ), Vestiaires équipés Homme (13m² environ) & Femme (13m² environ), Bureau "Manager" (10m² environ), Local Entretien (7m² environ), 3 Réserves/Remises/Stockage (de 7,3 / 15,8 / 23,7 m² environ), Bloc Sanitaires "Personnel" 2 WC/Lavabos (6,8m² environ), Local Technique (3,6m²) et Circulations (17,7m² environ). TGBT et Compteur EDF Tarif Jaune. Fibre et Baie de Brassage.
3°) Terrasse extérieure sur estrade possible à l'année (12 couverts environ)

Nous louons cet Espace pour un Loyer Mensuel de 3.900,00€HTHC, avec Refacturation Mensualisée de la Taxe Foncière soit 208,00€ en 2025.
Un Droit d'Entrée de 100.000,00€ donnant propriété du matériel vous sera demandé. Nos Honoraires d'Agence correspondant à 9,6%TTC du Loyer Triennal HTHC, soit 13.478,40€TTC, sont à la charge du Locataire.

Les informations sur les risques auxquels ce bien est exposé sont disponibles sur le site: www.georisques.gouv.fr

REF ROPERT IMMO : 4351/CBB87

  • Général
  • Détails +
  • Financier
  • Activité
  • DPE
  • Quartier
Caractérisque Valeurs
Type de transac Local commercial
Code postal 87000
Surface habitable (m²) 320 m²
Nombre de niveaux 2
Superficie (m²) 320
Caractérisque Valeurs
Mode de chauffage Climatisation
Type de chauffage Air pulsé
Format de chauffage Individuel
Caractérisque Valeurs
Loyer HT 3 900 € / mois
Honoraires HT charge locataire 13 478,40 €
Dont état des lieux Non renseigné
Dépot de garantie 7 800 €
Taxe foncière annuelle 2 496 €
Bail COMMERCIAL
Chiffre d'affaires
EBE
Caractérisque Valeurs
type d'activité - Divers - Restaurant - Restauration Rapide - Bar - Brasserie - Pizzeria - Sandwicherie - Vente à emporter - Crêperie - Café - Cave à vin
DPE GES
  • Commerces et santé
  • Loisirs
  • Ecoles
  • Transports
  • Pratique
Cette offre
vous intéresse

* champs obligatoires

Les informations recueillies sur ce formulaire sont enregistrées dans un fichier informatisé par La Boite Immo agissant comme Sous-traitant du traitement pour la gestion de la clientèle/prospects de l'Agence / du Réseau qui reste Responsable du Traitement de vos Données personnelles.
La base légale du traitement repose sur l’intérêt légitime de l'Agence / du Réseau.
Elles sont conservées jusqu'à demande de suppression et sont destinées à l'Agence / au Réseau.
Conformément à la loi « informatique et libertés », vous pouvez exercer votre droit d'accès aux données vous concernant et les faire rectifier en contactant l'Agence / le Réseau.
Si vous estimez, après avoir contacté l'Agence / le Réseau, que vos droits « Informatique et Libertés » ne sont pas respectés, vous pouvez adresser une réclamation à la CNIL.
Nous vous informons de l’existence de la liste d'opposition au démarchage téléphonique « Bloctel », sur laquelle vous pouvez vous inscrire ici : https://www.bloctel.gouv.fr 
Dans le cadre de la protection des Données personnelles, nous vous invitons à ne pas inscrire de Données sensibles dans le champ de saisie libre
Ce site est protégé par reCAPTCHA, les Politiques de Confidentialité et les Conditions d'Utilisation de Google s'appliquent.

Partager le bien
Nos outils
Imprimer Imprimer
Calculatrice financière

* Champ obligatoire

Partager l'annonce

* champs obligatoires

Les informations recueillies sur ce formulaire sont enregistrées dans un fichier informatisé par La Boite Immo agissant comme Sous-traitant du traitement pour la gestion de la clientèle/prospects de l'Agence / du Réseau qui reste Responsable du Traitement de vos Données personnelles.
La base légale du traitement repose sur l’intérêt légitime de l'Agence / du Réseau.
Elles sont conservées jusqu'à demande de suppression et sont destinées à l'Agence / au Réseau.
Conformément à la loi « informatique et libertés », vous pouvez exercer votre droit d'accès aux données vous concernant et les faire rectifier en contactant l'Agence / le Réseau.
Si vous estimez, après avoir contacté l'Agence / le Réseau, que vos droits « Informatique et Libertés » ne sont pas respectés, vous pouvez adresser une réclamation à la CNIL.
Nous vous informons de l’existence de la liste d'opposition au démarchage téléphonique « Bloctel », sur laquelle vous pouvez vous inscrire ici : https://www.bloctel.gouv.fr 
Dans le cadre de la protection des Données personnelles, nous vous invitons à ne pas inscrire de Données sensibles dans le champ de saisie libre
Ce site est protégé par reCAPTCHA, les Politiques de Confidentialité et les Conditions d'Utilisation de Google s'appliquent.

Détail des diagnostics énergétiques
DPE GES
DPE ANCIENNE VERSION

Partager avec vos proches

Facebook Facebook
Messenger Messenger
Twitter Twitter
WhatsApp WhatsApp
LinkedIn LinkedIn
Copier le lien Copier le lien
Se connecter
Espace propriétaire
Page d'accueil
Adhérents

© 2025 | Tous droits réservés | Traduction powered by Google |

  • Nos honoraires
  • Plan du site
  • Mentions légales
  • Partenaires
  • Admin
  • Politique RGPD
  • LinkedIn

Comme beaucoup, notre site utilise les cookies

On aimerait vous accompagner pendant votre visite. En poursuivant, vous acceptez l'utilisation des cookies par ce site, afin de vous proposer des contenus adaptés et réaliser des statistiques !

Paramétrer

Statistiques de visites

Pour améliorer votre expérience, on a besoin de savoir ce qui vous intéresse !
Les données récoltées sont anonymisées.

?

Google Analytics

requis
?

Google Tag Mananger

requis
En savoir plus